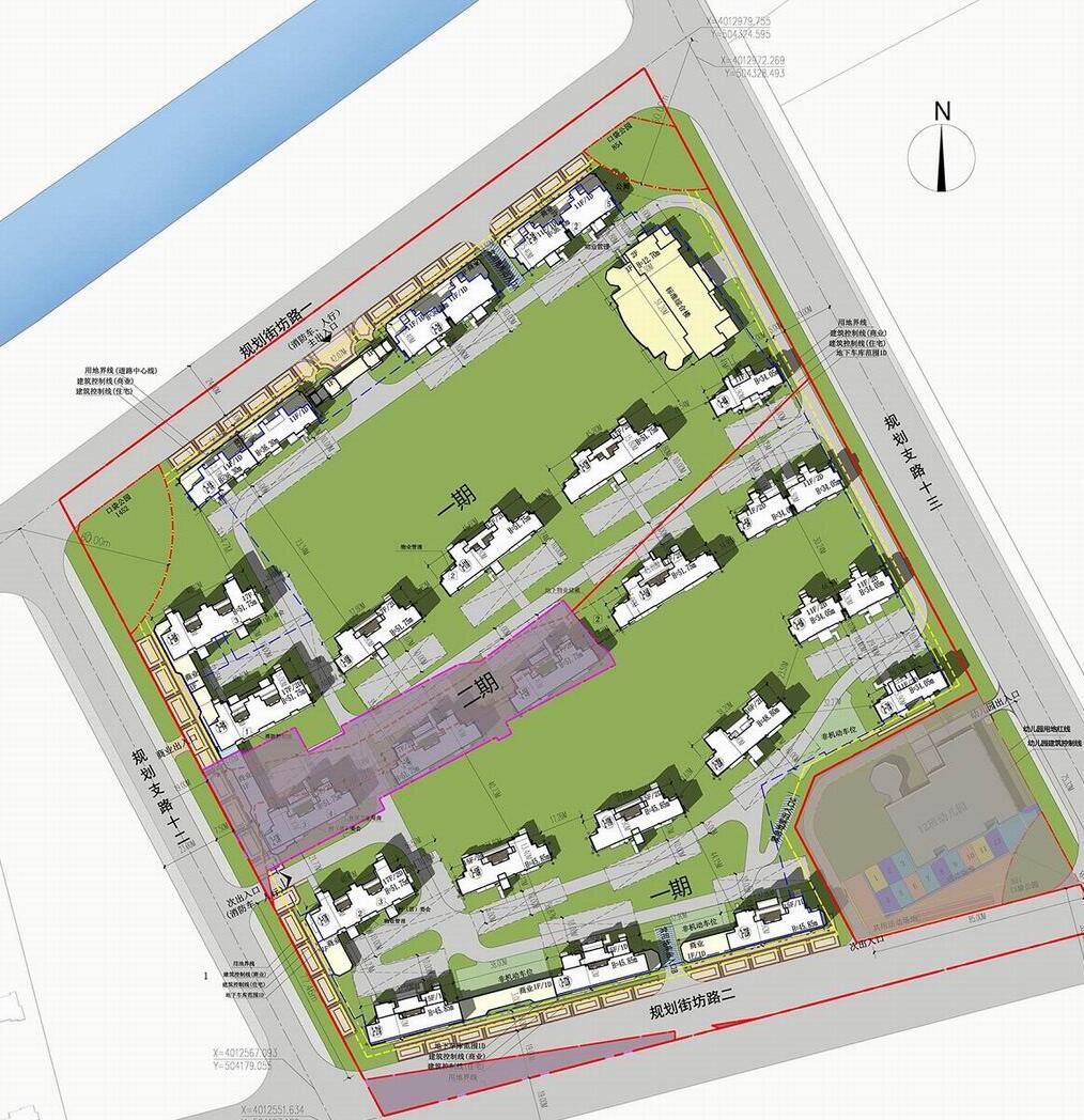
住宅用地总用地面积86234.47平方米,总建筑面积223399. 75平方米。其中地上建筑面积155222.05平方米,地下建筑面积68177.7平方米,共1777个停车位。全部为地下停车位。共1355户,容积率1.8,绿地率为30%。共拟建23栋小高层住宅和1栋综合楼,一栋12班幼儿园。
一期地上建筑面积134922.01平方米,地下建筑面积61200.14平方米。有商业网点8394.46㎡。一期拟建20栋小高层住宅。
浏览:644次 来源:乐易房产网
