
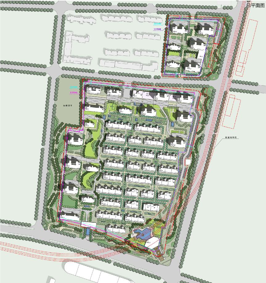
根据规划内容显示,该项目位于城阳区银河路以北、王沙路以西,建筑面积352579.5平方米,地上建筑面积233941.3平方米,其中住宅建筑面积229141.0平方米,商业建筑面积2585.4平方米,配套建筑面积2214.9平方米。地下建筑面积118638.2平方米。


项目界内满足大寒日两小时日照要求,项目界外满足大寒日三小时日照要求。从经济技术指标来看,项目涵盖有商业、居民健身室、社区中心及老年活动站。



2018年2月12日,青岛地铁青特置业有限公司竞得夏庄街道银河路北、王沙路西两幅地块,总价5.98亿,平均楼板价2558元/㎡。两地块总占地面积12.31万平方米,地块临近规划地铁10号线贾家营站,日后将建成一座含住宅、商业、生活配套为一体的大型地铁上盖项目。
浏览:641次



 
            
            
           