返回
楼盘资讯
金泽九里风华规划及建筑方案公告 55栋住宅楼含高层
乐易房产网
2018-07-17 18:54
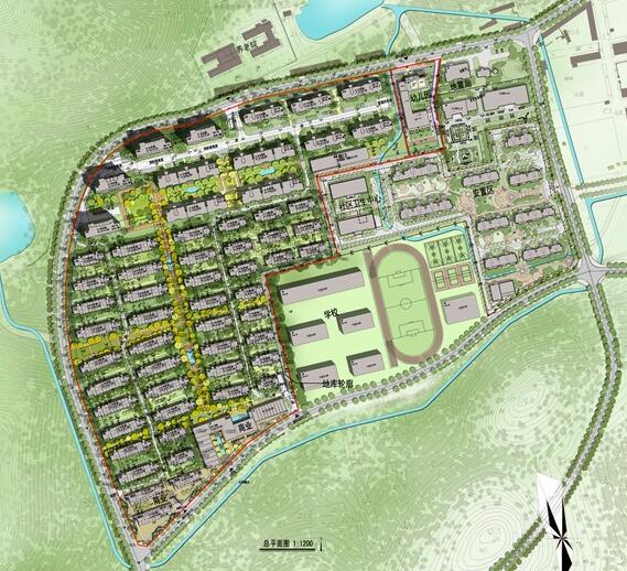
连江路3093地块项目位于青岛黄岛区长江东路北,连江路西。满足采光和通风要求,着重进行步行环境和绿地系统的规划设计,较大程度的使居民接近,享受自然。
项目布置55栋住宅楼、一处幼儿园。其中布置9栋多层住宅楼;沿北侧规划路布置1处6班幼儿园和3栋多层住宅楼以及4栋高层住宅楼。在规划基地南侧规划一个人行出入口和两个车行出入口,北侧布置车行出入口。
区位图
总平面图
高层南立面效果图
多层南立面效果图
商业效果图
联排南立面效果图
实景合成鸟瞰图
浏览:508次
广告
金泽九里风华楼盘详情
相关推荐
01-10
西海岸新区多批次用地征收获批复(续),涉灵山卫等街道
12-27
市北滨海活力湾奥润国际下月开建,规划8栋楼投资20亿
12-27
李沧区规划35号线打通工程(规划33号线-甘泉路)获批
11-28
崂山一中规划调整,意向方案披露
热点楼盘
参考:16000元/㎡
保利青铁和著理想地
保利和青铁联合开发建设,位于青岛开发区扒山区域,周边教育资源、医疗资源丰富。...浏览:10531次
参考:14500元/㎡
金地华悦
金地华悦...浏览:11517次
参考:21900元/㎡
海信君悦
海信君悦由青岛信悦置业有限公司建设,位于长江中路南、九连山路东。占地面积19628㎡,建设5栋建筑配套商业9421.44㎡(包括底层...浏览:25548次
参考:16500元/㎡
中交海发山海大观
中交青岛总部基地项目位于灵山湾板块,滨海大道与朝阳西路交汇处北30米,总建面约86万方,是集高端住宅、人才公寓、超高层写字楼...浏览:64349次
首页
频道
声明
更多