楼盘资讯
万达广场及即墨万达广场小区规划变更 户型和层高有调整
  乐易房产网  2021-01-22 18:19
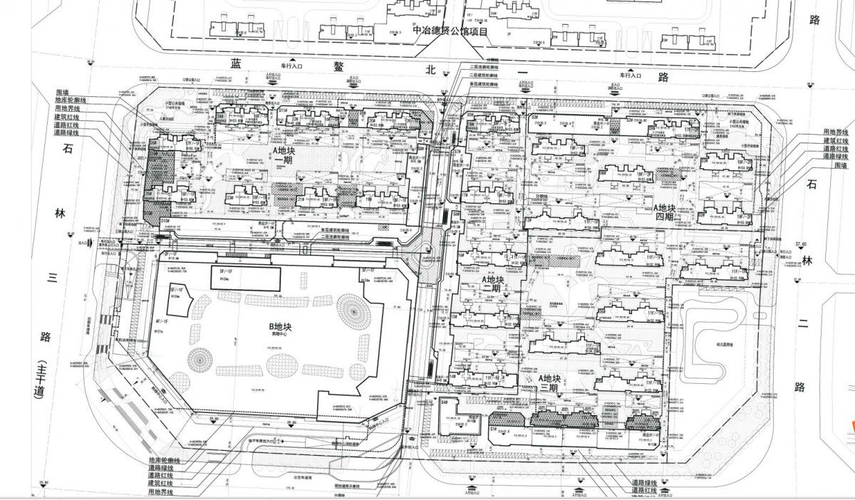
近日,从即墨自然资源局获悉,万达广场及即墨万达广场小区项目规划变更,项目由青岛万达地产开发有限公司建设,位于石林三路以东、蓝鳌北一路以南。

A地块1#12#楼户型变化,由18层降低为11层,2#3#4#6#7#8#9#10#11#13#楼户型变化,5#楼户型变化两户变为四户,地上地下车位数量及地下车库面积调整;B地块地上停车位数量调整。

A地块规划户数由1488户,变为1445户,停车位由1488个变为2657个;B地块停车位由415个变为444个。





浏览:422次 来源:乐易房产网
免责协议
广告

相关推荐

热点楼盘