具体变更内容如下(详见变更后图纸)
1、1#2#楼二层北立面走廊窗户原设计无窗跺,石材保温占压窗框易造成渗漏隐患,申请增加窗跺优化设计,窗户宽度由2000mm变更为1200mm。
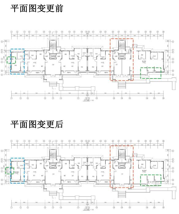
2、原设计物业用房位于10#楼东单元东户,导致10#楼东单元大堂较其他楼座单元大堂面积较小,易引发投诉;申请取消东单元一层大堂隔墙,将此处物业管理用房28.17㎡调整至10#楼西单元西户,同步在两处物业管理用房各增加一个疏散口,变更后物业管理用房面积不变。
浏览:251次 来源:乐易房产网
