楼盘资讯
城阳中巍白云山一期开始物业招标
  乐易房产网  2023-03-01 16:40

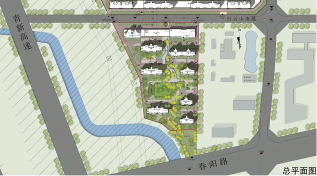
3月1日获悉,中巍白云山一期开始物业招标,项目由城阳中巍环湾(青岛)投资开发有限公司建设,位于青岛市城阳区春阳路93号。

项目总占地面积为24293.00㎡,总建筑面积为79118.95㎡;地上建筑面积为58303.20㎡,其中高层住宅45412.55㎡、人才住房5130.68㎡、商业服务网点2798.55㎡、商务4197.83㎡、物业用房395.59㎡,其他配套用房368.00㎡;地下建筑面积20815.75㎡;总户数440户;总停车位631个,其中地上停车位54个,地下停车位577个;项目容积率为2.4;绿地率为35%。

图片



浏览:176次 来源:青岛乐易
免责协议
广告

相关推荐

热点楼盘