楼盘资讯
青岛创新科技城7-5地块规划调整
  乐易房产网  2023-07-04 16:48

7月4日,从青岛西海岸交通商务区管委获悉,青岛创新科技城7-5地块项目规划调整。项目由青岛创城置业有限公司建设,位于东岳路以北,规划嘉宁路以西,为办公、商务配套。

青岛为海边城市,气候宜人。项目立面整体抓住地域特征,把绿色海浪的概念运用到建筑整体设计上。自由的线条起伏的形态形成绿色的纽带和建筑交织呼应。整体性强,形态活泼有张力。办公楼充满科技感及动感的立面,以及沿城市界面通透的玻璃幕墙,营造出简洁大气、未来科技生态的立面效果。

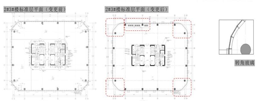
2#、3#塔楼规划方案(指标无变化)调整1:考虑随入驻率空调灵活便利运行,空调系统由水系统风机盘管改为VRV多联机系统,外立面增加室外机位和通风百叶,背立面每层对应集中设置。调整2:转角弧形玻璃逐层尺寸不同,定制排产工期影响较大且后期维护更换玻璃难度大,故优化为平面玻璃微折线做法。


浏览:297次 来源:乐易西海岸
免责协议
广告

相关推荐

热点楼盘