
2018-07-03
7月2日,青岛市规划局黄岛分局公布了隆和城大溪谷五期项目规划及建..
2018-07-03
7月2日,青岛市规划局黄岛分局公布了凭海临风七期(3-2区)规划及..
2018-06-30
日前,青岛高新区售房公开摇号方案发布,27日,青岛市城阳公证处发..
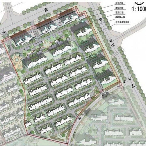
2018-06-28
历时20多年、三次启动都未成功的老大难项目郑州路两侧项目,近期终..
2018-06-28
近日获悉,青岛康润房地产开发有限公司在建设秀兰禧悦都三期工程时..
2018-06-27
近日,青岛古镇口军民融合创新示范区管理委员会公布了融合嘉园项目..
2018-06-26
日前,青岛规划局发布了鲁信海曙云霞项目规划变更批前公示。根据此..
2018-06-25
2016年,市民吴先生在青岛农商银行胶州支行处交了5万元认筹金及8万..
2018-06-25
城阳国土资源分局关于发布阻止有偿办理白沙湾公租房租赁资格信息的..
2018-06-23
2014年,市民朱先生购买了青岛欧美榭香里小区的房子,合同约定2015年6..
2018-06-23
近日,市民反映称,有房产中介在收取房号钱,称交了4万元号钱就可以..
2018-06-23
项目名称:西海岸文化大厦项目(工程总承包) 工程地..
2018-06-23
置协议于不顾开发商强行拆除相邻小区围栏引起了市民广泛关注。胶州..
2018-06-23
买房是大事,很多购房者都是跑了无数售楼处才买到自己中意的房子。..
2018-06-22
我觉得认购协议签的不靠谱,不敢交钱。近日,家住青西新区的薛女士..