青岛
简单可信赖
广告
主页>青岛新房>崂山 金家岭>交运山海懿品
浏览:46515次  更新日期:2021-11-11

交运山海懿品

住宅  生态地产  

手机浏览
微信咨询

交运山海懿品
交运山海懿品
交运山海懿品
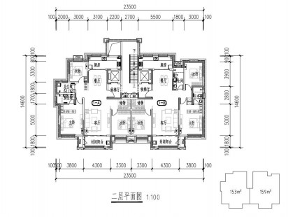
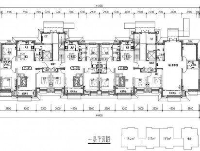
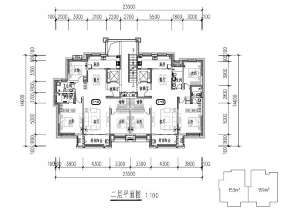
  • 交运山海懿品 户型图
  • 交运山海懿品 实景图
  • 交运山海懿品 效果图
  • 参考价: 50000 元/㎡

    本页面价格均为参考价格,实际以开发商为准

      预售证:暂未取得或未录入

    此处数据并不实时更新,当前实际情况以开发商为准

  • 特点:交运书香小筑|温馨花园  
    推荐楼盘
  • 类型:洋房  
    装修:毛坯  
  • 户数:
      31户
    产权:50年
  •   崂山 金家岭 青岛市云岭路36号
  • 周边交通:M11
    周边教育:崂山区实验小学,青岛金家岭学校
  • 开盘:2021-08-15
    交房:2022-05-01
更多…交运山海懿品怎么样/交运山海懿品价格/动态/新消息
  • 佳源华府旁,区域唯一6层电梯洋房产品,面积117-134-159-225平,一楼带院子、带地下室,顶楼复式,毛坯准现房销售,国企背景开发,整盘共两栋32套,高端品质。

    1# 6层 (一梯一户)2#5层(两梯一户)


更多户型…

交运山海懿品户型

效果图(5) | 户型图(2) | 实景图(5) | 更多相册图库…

交运山海懿品相册图库
  • 交运山海懿品鸟瞰图

    鸟瞰图

  • 交运山海懿品效果图

    效果图

  • 交运山海懿品效果图

    效果图

  • 交运山海懿品施工图

    施工图

  • 交运山海懿品施工图

    施工图

交运山海懿品价格走势

本页面价格均为参考价格,实际以开发商为准

参考价:50000元/㎡
更多…价位相近

交运山海懿品楼盘简介

交运山海懿品位于青岛市云岭路36号, 由青岛交通建设工程有限公司建设, 用地面积3389㎡, 建筑面积8969㎡,物业为交运集团,物业费5.00元,容积率1.40,绿化率30%,车位41个,以上数据仅供参考。
佳源华府旁,区域唯一6层电梯洋房产品,面积117-134-159-225平,一楼带院子、带地下室,顶楼复式,毛坯准现房销售,国企背景开发,整盘共两栋32套,高端品质。

1# 6层 (一梯一户)2#5层(两梯一户)


区域相近
热点楼盘
免责声明:本网站所刊载的"新房"交运山海懿品所有资料及图表仅供参考使用,不声明或保证其内容之正确性或可靠性。刊载这些文档不视为交运山海懿品已取得商品房预售许可证或达到可以销售的标准,且不构成对交运山海懿品楼盘的购买邀约或意图。参阅本网站上所刊文档的人士,应被视为已确认并知悉上述立场。依据本网站提供的信息、资料及图表进行房屋交易做造成的任何后果与本网站无关。本网站有权但无此义务,改善或更正资料及图表任何部分之错误或疏忽。网站所涉面积,如无特殊说明,均为建筑面积,涉及楼盘价格,如无特殊说明,有效期均为7日内,文中出现的图片仅供参考,以上交运山海懿品信息仅供参考,所有信息以交运山海懿品的开发商提供为准!