网站首页
|
城投瑞园主页
青岛房产网
>
新房
>
城投瑞园
>
相册
暂停
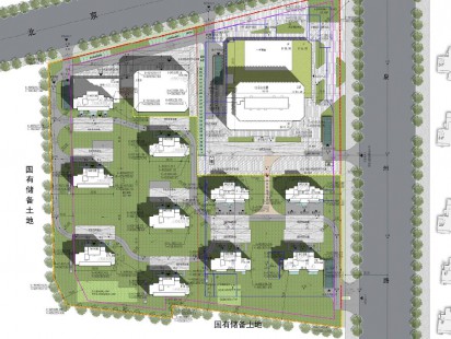
城投瑞园效果图(
1
/4张)
城投瑞园
青科海棠园效果图
保利青铁和著理想地户型图
城发湖畔瑞城户型图
效果图
4张
<
>
1/4
2/4
3/4
4/4
资讯
新盘
顶部