网站首页
|
绿城锦上月鸣主页
青岛房产网
>
新房
>
绿城锦上月鸣
>
相册
暂停
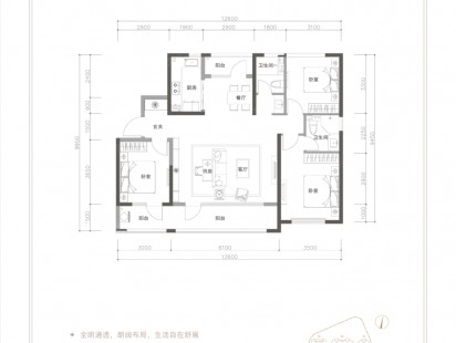
绿城锦上月鸣户型图(
1
/5张)
绿城锦上月鸣
青科海棠园效果图
保利青铁和著理想地户型图
城发湖畔瑞城户型图
效果图
4张
户型图
5张
<
>
1/5
2/5
3/5
4/5
5/5
资讯
新盘
顶部