网站首页
|
青特悦海府主页
青岛房产网
>
新房
>
青特悦海府
>
相册
暂停
青特悦海府(
1
/3张)
青特悦海府
青科海棠园效果图
保利青铁和著理想地户型图
城发湖畔瑞城户型图
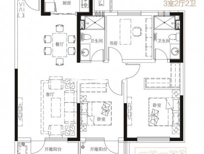
户型图
3张
效果图
4张
<
>
1/3
2/3
3/3
资讯
新盘
顶部