网站首页
|
花样年碧云湾主页
青岛房产网
>
新房
>
花样年碧云湾
>
相册
暂停
花样年碧云湾(
1
/6张)
花样年碧云湾
青科海棠园效果图
保利青铁和著理想地户型图
城发湖畔瑞城户型图
效果图
10张
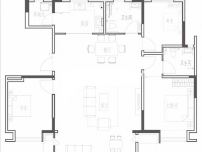
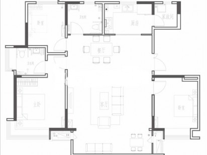
户型图
6张
<
>
1/6
2/6
3/6
4/6
5/6
6/6
资讯
新盘
顶部